Какие бывают приборы газового контроля
По функциональности
Сигнализатор загазованности с датчиком(ми) на один или несколько видов газа;
Сигнализатор с GSM-контролем подходит для активных пользователей смартфонов. Сигнализатор синхронизируется с гаджетом через GSM-сети и посылает вызовы или SMS в случае утечки газа.
Система контроля загазованности, включающая в себя сигнализатор и отключающий клапан подачи газа – не просто фиксирует утечку газа, но и блокирует подачу голубого топлива в газовое оборудование.
По количеству видов распознаваемого газа
Однокомпонентные обнаружат один вид газа — метан (пропан) или угарный газ.
Двухкомпонентные определят два вида: метан (пропан) и угарный газ.
В настоящее время владельцы жилых помещений могут самостоятельно решать, устанавливать прибор газового контроля или нет.
Можно ли установить самостоятельно
Установка систем контроля загазованности с автоматическим перекрытием газа или сблокированными с интеллектуальным счетчиком газа производится только специалистами газовой службы специализированной организации.
Сигнализаторы, не требующие монтажных работ на газопроводе, можно устанавливать самостоятельно. Только нужно правильно разместить их, руководствуясь указаниями в паспорте, и подключить к питанию.

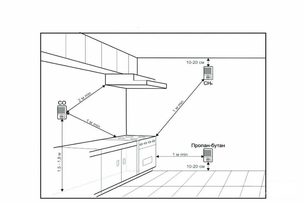
Разместить правильно, в частности, означает учесть, что для каждого датчика высота расположения будет своя:
- датчик, определяющий метан, — над источником потребления газа (10-20 см от потолка);
- датчик, определяющий угарный газ, — на высоте источника потребления газа или ниже его (на высоте 1,5-1,8 м от пола, но не ближе чем 0,3 м до потолка);
- комбинированный (метан+угарный газ) — в местах возможной утечки газа на расстоянии от 0,3 м до 0,5 м от потолка.
- датчик, определяющий пропан, – не выше 0,5 м от пола.
Лучше использовать однокомпонентные сигнализаторы, так как они быстрее среагируют на наличие определенного вида газа в помещении.
Устанавливая сигнализатор самостоятельно, также нужно знать, что его нельзя размещать близко к горючим и легковоспламеняющимся веществам, рядом с окнами, вентиляцией, дымоходом и плитой.
Что еще важно знать
Датчики должны проходить ежегодную поверку (калибровку), иначе повышается риск того, что они не сработают.
Установка прибора газового контроля – важный шаг для обеспечения безопасности, но это не заменяет технического обслуживания газового оборудования. Даже при его наличии важно периодически проверять газовые коммуникации и подключенные приборы – для этого нужно заключить договор со специализированной организацией, оказывающей услуги техническому обслуживанию газового оборудования.
